NOVA Hydromet — Products: Severe Service Ball Valves
NOVA

Severe Service Ball Valves

NOVA specializes in ball valves with material technology and valve designs that meet the most stringent standards of today’s hydrometallurgy industries. These high-performance valves are designed and manufactured to solve severe service problems effectively and efficiently.

High Velocity Oxygen Fuel (HVOF) Coatings

NOVA can supply specialty hard coatings for severe service balls, seats, and valve bores. NOVA’s manufacturing team works with a trusted third party to provide this specialized service.

The key parameters for robust coatings are porosity and bond strength. For highly acidic applications with Titanium valve components, NOVA generally recommends a Titanium Dioxide coating, which research has shown to be less prone to corrosion and spalling.

For non-acidic applications, Tungsten Carbide coatings over stainless or carbon steel base metal can be a good option. Depending on the application, NOVA can also provide a Chrome Carbide coating.

NOVA Hydromet — High Velocity Oxygen Fuel Coatings (HVOF)
NOVA Hydromet — High Velocity Oxygen Fuel Coatings (HVOF)
NOVA Hydromet — Ball Valve Springs

Live Loaded Seat Options

NOVA’s Severe Service Ball Valve has both Belleville and Compression spring options for live loaded seats. Generally, Belleville spring live loading yields better results for severe service applications with high solids content or scaling potential because of the spring’s simpler geometry.
NOVA Hydromet — Ball Valve Design

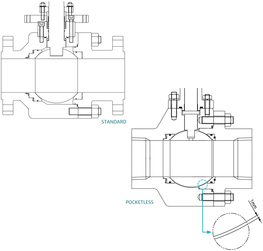
Standard vs. Pocketless Design

NOVA’s Severe Service Ball Valve has a pocketless design not found in other similar valves. The valve body components are machined to match closely with the ball, usually a gap of about 1 mm for smaller sizes and slightly larger for large diameter valves. Minimizing the gap between the ball and body leaves less space for process to accumulate or scale to build up. A standard design is also available.